Cobscook Bay Clients Complete their Cabin

December 10, 2025

In the summer of 2024, four TimberHomes crew members packed a tight little bundle of timbers onto a long trailer and headed to Downeast Maine. These four amigos were headed to Perry, Maine, a small town on a cove off Cobscook Bay, itself an inlet to the larger, remarkable Bay of Fundy. In tow, they had the couple dozen timbers needed to assemble a sweet little 18′ x 28′ cabin frame.

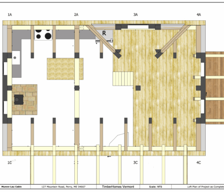
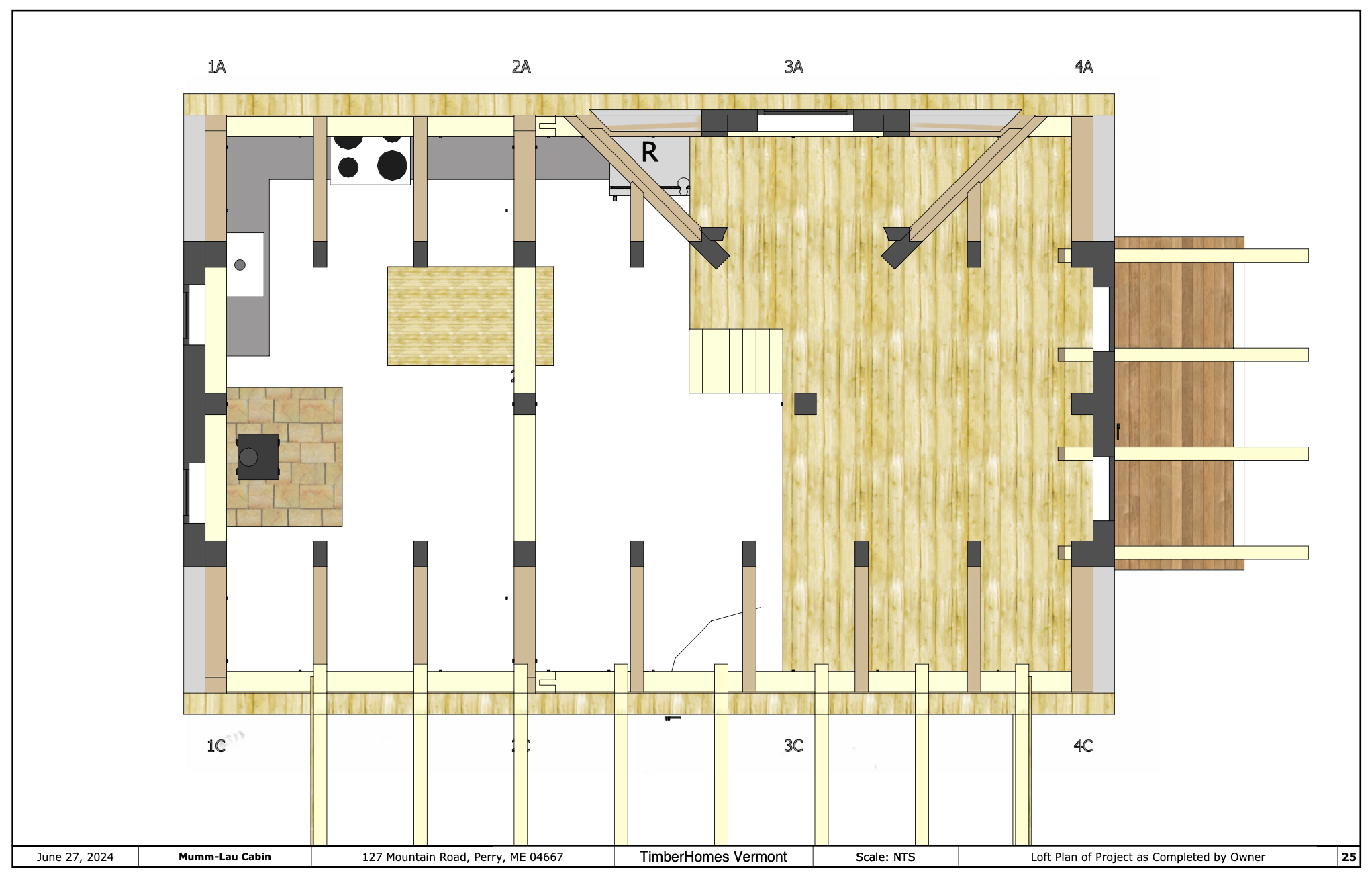
The plan was to raise the timber frame over the course of a weekend, with our four crew members, the two owners, and a roustabout. The owners would take it from there, finishing out the cabin, overseeing utilities and the roof installation. This cabin is 500 square feet on the ground floor, with a partial loft that adds an additional 175 square feet of space upstairs. The first floor houses a kitchen, bathroom, and a bedroom, plus a living room with a woodstove. It will be a cozy retreat on the shores of this cove for a sweet family of four.

The roustabout raising went off without a hitch, and we ended up finishing the frame raising very late on Saturday night, to avoid an incoming storm on Sunday. The owners did a beautiful job finishing the cabin out themselves, as you can see in the photos below.